Bifamiliare in vendita

Torre Del Greco, Via Nazionale - Leopardi
€ 830.000
Prezzo aggiornato
11 locali 11 locali
360 Mq 360 Mq
4 bagni 4 bagni

Bifamiliare in vendita

Torre Del Greco, Via Nazionale - Leopardi

Descrizione annuncio

PER INFO O PER FISSARE APPUNTAMENTO CHIAMA AL 081.195.50.545 O SCRIVICI SU WHATSAPP AL 351.18.40.843

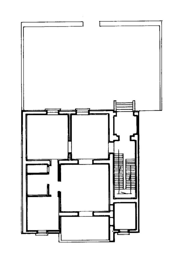
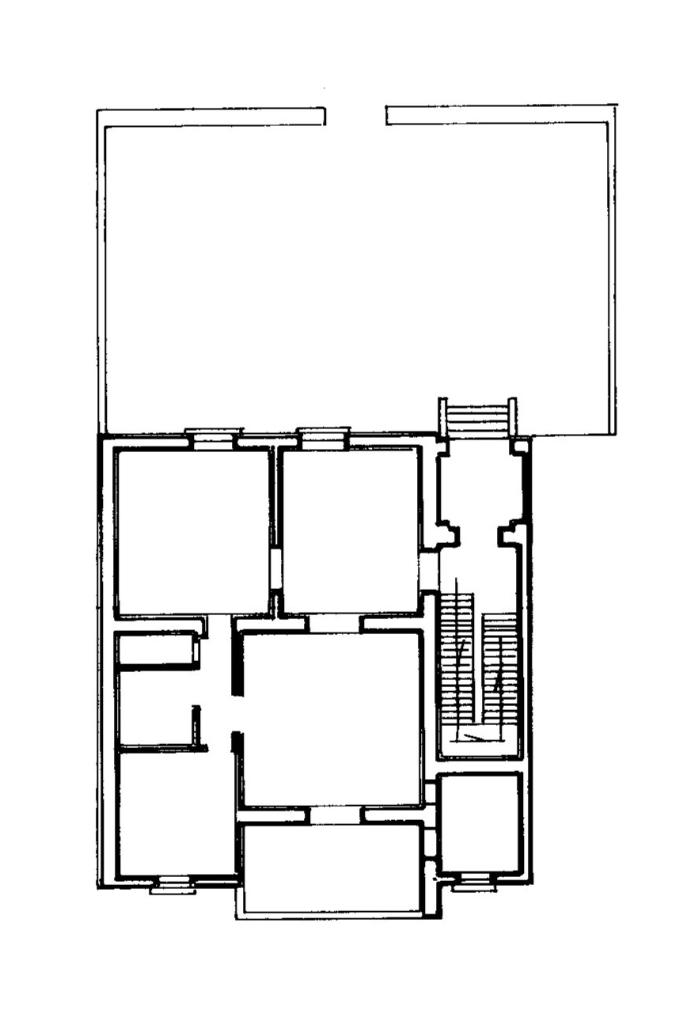
Torre del Greco – Via Nazionale Villa d'epoca con giardino, box auto e depandance

Nel cuore di Leopardi a Torre del Greco, si propone in vendita una prestigiosa villa bifamiliare d'epoca, risalente al 1900.

Questa residenza di 360 mq offre ampie metrature e si sviluppa su più livelli, garantendo un accesso diretto al giardino privato, ideale per momenti di relax all'aperto.

La proprietà comprende al piano terra 2 camere da letto e 2 ulteriori stanze versatili, perfette per adattarsi a diverse esigenze abitative con cucina,1 bagno e 1 bagnetto di servizio. Al primo piano si sviluppa con una grande cucina 2 grandi camere, 2 camerette e 1 camera da letto con 1 bagno il tutto distribuito in modo funzionale che assicurano comfort e praticità.

Due balconi arricchiscono l'abitazione, offrendo spazi esterni aggiuntivi.

Un box auto completa la dotazione, garantendo comodità di parcheggio.

La villa si trova in una posizione centrale, ben collegata e vicina ai principali servizi.

Una depandance all'interno del giardino, aggiuntiva offre ulteriori possibilità di utilizzo, rendendo questa proprietà un'opportunità unica.

Vieni in ufficio per ulteriori informazioni o per una consulenza gratuita, ci troviamo a Torre del Greco in Via Nazionale n°586, ti aspettiamo!

Disponibilità per le visite:
previo appuntamento telefonico.
Per maggiori informazioni, contattare il seguente numero 081.195.50.545 ed un nostro consulente sarà lieto di offrirvi una nostra consulenza gratuita.
Da oggi puoi chiederci anche info su WhatsApp, contattandoci al numero: 351.18.40.843 oppure puoi consultare le nostre pagine Facebook e Instagram.
Ogni agenzia ha un proprio titolare ed è autonoma.
Le presenti informazioni non costituiscono elemento contrattuale.

Mostra tutto

Nelle vicinanze

Trasporto pubblico Trasporto pubblico
Leopardi
Leopardi
330 m
Via Viuli
Via Viuli
630 m
Via Nazionale
Via Nazionale
20 m
Via Prota
Via Prota
150 m
stazione di Torre Annunziata Città
stazione di Torre Annunziata Città
2,6 Km
Scuole Scuole
Istituto Comprensivo Statale "8° G. Falcone - R. Scauda"
240 m
2° Istituto Comprensivo "V. Alfieri"
1,3 Km
Istituto Comprensivo "Sancia D'Angiò" Scuola Materna - Elementare - Media
1,3 Km
Istituto Comprensivo Statale "G. B. Angioletti"
1,4 Km
Liceo Statale Pitagora B. Croce
1,4 Km
Farmacia Farmacia
Farmacia Leopardi
220 m
Farmacia delle Erbe
750 m
Farmacia del Panda
960 m
Farmacia Esposito
1,2 Km
Farmacia Caravelli Dott. Magliulo Antonella
1,4 Km
Ospedali Ospedali
Ospedale Civile di Boscotrecase
2,7 Km
Supermercati Supermercati
Supermercato Decò
150 m
Giunigor s.r.l.
940 m
SISA Pettorino
1,4 Km
MD Discount
1,6 Km
Enoteca - Raggio di Sole
1,8 Km
Negozi Negozi
Sapori nostrani
100 m
Dulcis Abbigliamento
120 m
Cutolo
180 m
Negozi
180 m
Panificio di Maio
230 m
Bar Bar
Bar Cutolo Salvatore
160 m
The Big Apple
780 m
Bar Manusa
930 m
Bar Maurino
970 m
Bar Gardenia
1,2 Km
Ristoranti Ristoranti
Cuori di Pizza
90 m
Le Due Marie
210 m
Il Segreto di Pulcinella
350 m
A' Taverna e Pulcinella
510 m
Sapori Marigiò
580 m
Mostra tutto

Caratteristiche

Rif.:
61100820
Piano:
1 di 3 (Piano terra con giardino)
Box:
1
Balconi:
2
Camere da letto:
6
Arredamento:
Assente
Mostra tutto
Prezzo Prezzo
€ 830.000
Rata mutuo Rata mutuo
€ 3.684 / mese
Spese annue Spese annue
€ 0
Proponi il tuo prezzoProponi il tuo prezzo

Classe Energetica

G
G
G
G
G
G
G
G
G
EP globale non rinnovabile:
289.03 kW h/m² anno
EP globale rinnovabile:
0.00 kW h/m² anno
EP invernale del fabbricato:
EP estiva del fabbricato:
Anno di costruzione:
1900
Riscaldamento:
Autonomo
Tipo impianto:
A radiatori
Tipo alimentazione:
Metano

Prezzo ridotto di €1 (3%%)

Ti interessa visionare l'immobile?

Fissa un appuntamento  Fissa un appuntamento

Richiedi informazioni

* Questi campi sono obbligatori

Calcola il tuo mutuo

Semplice e senza impegno
Anticipo

( % )
Mutuo

( % )

pochi semplici passi

inserisci i tuoi dati
Questionario completato
Grazie per aver richiesto un appuntamento senza impegno con un nostro Consulente del Credito e Assicurativo.

Hai inserito correttamente tutti i dati necessari e a breve riceverai una e-mail con un link da convalidare per inviare i tuoi dati.
Affiliato
Santa Maria La Bruna Sas
Via Nazionale, 586 80059 Torre Del Greco (NA)

Il nostro staff


  • Costantino Durso
    Affiliato

  • Monica Bagno
    Coordinatrice

  • Luigi Borriello
    Collaboratore

  • Giulio Nocera
    Collaboratore

  • Luigi Sannino
    Collaboratore
Via Nazionale, 586 80059 Torre Del Greco (NA)
Zona: Torre del Greco
Mostra su mappa
Affiliato
Santa Maria La Bruna Sas
Via Nazionale, 586 80059 Torre Del Greco (NA)

2025 Tecnocasa Franchising S.p.A. - P. IVA 08365160152 - Via Monte Bianco 60/A 20089 Rozzano (MI). Ogni agenzia ha un proprio titolare ed è autonoma. Privacy policy | Policy utilizzo | Cookie policy